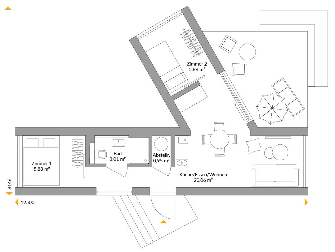
Als edles Ferienhaus präsentiert sich das knapp 36 Quadratmeter-Domizil in naturfarbenenr Lamellenverkleidung. Die großen Verglasungen bieten herrliche Aussicht in alle vier Himmlsrichtungen. Auch bei diesem Haus aus schmalen S-Modulen ist dank eines angedockten Flügels ein zweites Schlafzimmer vorhanden und im Übergang zwischen beiden Modulen Platz für den Familientreff. Die geschützte Terrasse bietet einen weiten Blick in die Landschaft.

Grundrisse
Kompletter Plan aller Etagen mit Fläche






Klimafreundlich bauen für die Zukunft unserer Kinder.

Unsere Lösungen erleichtern den Alltag, steigern den Komfort und begleiten Sie zuverlässig – vom Aufstehen bis zum Schlafengehen.

Seit über 25 Jahren führend im Bau von Fertighäusern.
