Dieses Familienhaus ist schon von außen ein echter Hingucker. Bodentiefe, sprossengeteilte Fenster versprühen Landhauscharme – und dies ohne zusätzliche Kosten – und zeigen: Hier geht es gemütlich zu. Ein zusätzlicher AHA-Effekt offenbart sich auch im Innern. Hier ist nichts konventionell - dank ungewöhnlicher architektonischer Details. Da wäre der Eingang an der Traufwand des Gebäudes, der einen großzügigen Dielen- und Flurbereich ermöglicht. Wohn- und Essbereich nehmen so eine „Haushälfte“ ein. Ein zusätzliches Arbeitszimmer konnte dank rückwärtiger Lage neben der Treppe als Rückzugsmöglichkeit platziert werden. Drei Schlafzimmer, Ankleide und Wannenbad vervollständigen das Obergeschoss und bieten ruhige Plätze zum Relaxen und Erholen. Auch hier lässt sich optional mit einer Kniestockerhöhung im Obergeschoss Raumgewinn erzielen.
*Abbildungen zeigen teilweise individuelle Zusatzausstattung.
Hausstandard Family
Vollständige Baubeschreibung und Materialspezifikation.

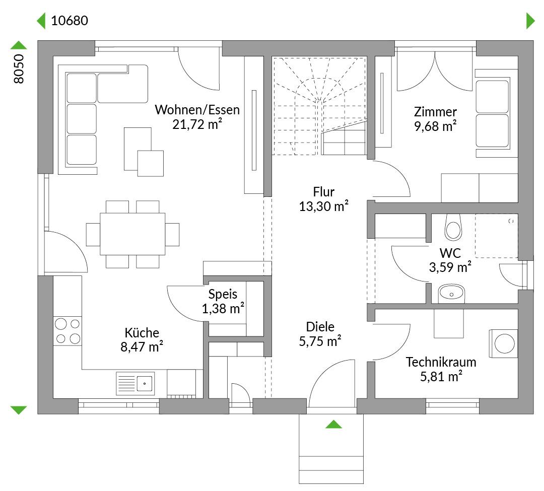
Grundrisse
Kompletter Plan aller Etagen mit Fläche





Mit unserem DAN-WOOD Family-Programm sparen Sie mehrfach: Dank des hohen Vorkonfigurationsgrad am Hauspreis, der klimafreundlichen Bauweise mit günstiger Finanzierung und moderner Haus- und Heiztechnik bei den Heizkosten. Wählen Sie Ihren Wunschhaustyp - ob Bungalow, eineinhalbgeschossiges Haus oder schöner Zweigeschosser.

Klimafreundlich bauen für die Zukunft unserer Kinder.

Unsere Lösungen erleichtern den Alltag, steigern den Komfort und begleiten Sie zuverlässig – vom Aufstehen bis zum Schlafengehen.

Unsere Badprojekte ansehen
