Das Family 194 von Danwood ist ein modernes Zweifamilienhaus mit zwei unabhängigen Einheiten. Auf einer Seite bietet das Erdgeschoss eine kompakte, vollausgestattete Wohnung, ideal für Ältere, Mieter oder Studierende. Die Hauptwohnung erstreckt sich über zwei Etagen mit einem großzügigen Wohnbereich, offener Küche und drei Schlafzimmern. Generationenwohnen wird hier lebendig, mit der perfekten Balance aus Nähe und Privatsphäre. Stellen Sie sich vor, wie der gemeinsame Alltag den Zusammenhalt und Austausch zwischen den Generationen fördert, und gegenseitige Unterstützung im Alltag bietet. Zusätzlich profitieren die Bewohner von geteilten Bau- und Unterhaltskosten, was es zu einer klugen Wahl für Mehrgenerationenwohnen oder als Anlageobjekt macht.
Hausstandard Family
Vollständige Baubeschreibung und Materialspezifikation.

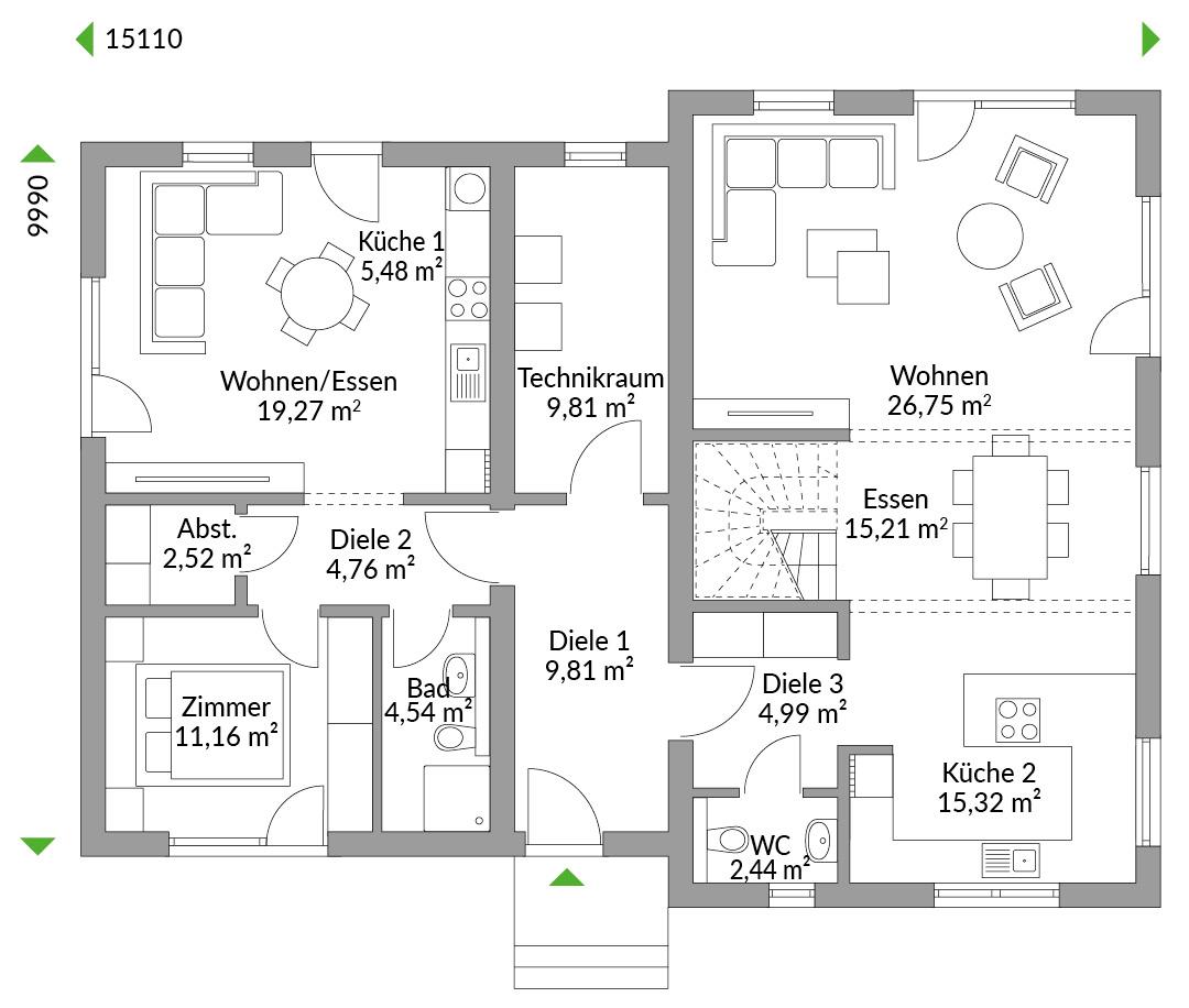
Grundrisse
Kompletter Plan aller Etagen mit Fläche





Mit unserem DAN-WOOD Family-Programm sparen Sie mehrfach: Dank des hohen Vorkonfigurationsgrad am Hauspreis, der klimafreundlichen Bauweise mit günstiger Finanzierung und moderner Haus- und Heiztechnik bei den Heizkosten. Wählen Sie Ihren Wunschhaustyp - ob Bungalow, eineinhalbgeschossiges Haus oder schöner Zweigeschosser.

Klimafreundlich bauen für die Zukunft unserer Kinder.

Unsere Lösungen erleichtern den Alltag, steigern den Komfort und begleiten Sie zuverlässig – vom Aufstehen bis zum Schlafengehen.

Unsere Badprojekte ansehen
